
こんばんは。Aoiです。
高温・多湿な日本の夏を乗り切るために我が家ではエアコンを使用して全館冷房をしています。
これは全館の室温を適温にするだけではなく、除湿を行い適正湿度にを保つことを目的としています。相対湿度60%以下にすることでダニ・カビの発生を防ぎ、非常に快適な生活を送ることが可能となります。
今回の記事では我が家でどのように全館冷房を実施しているのか運用方法について紹介します。
※デメリットも多く、参考になるかわかりませんのであらかじめご了承ください。
我が家の全館冷房運用方法
2階エアコンを主軸に置き、24時間稼働
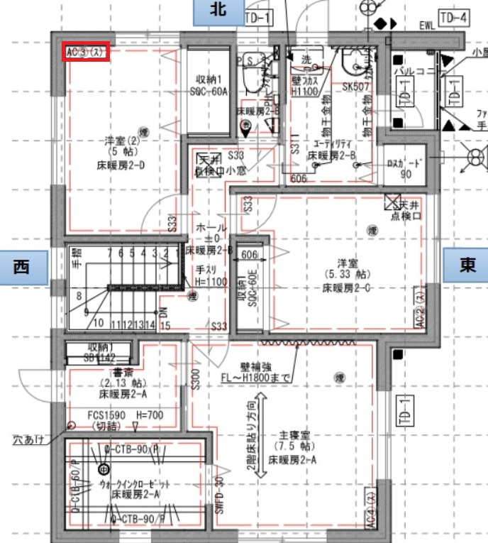
我が家の全館冷房は2階エアコンを主軸に置いています。
設置場所は以下図面の赤枠箇所となります。今は使用していない子供部屋に設置しており、エアコンからの風を遮るようなモノはなにも置かないようにしています。エアコンのサーモオフを防ぎ、除湿を怠らないためです。
冷房運転中に室内が設定温度に達したときに稼働停止し送風モードになること。省エネのための機能となっているが、除湿がされなくなり、室内の湿度が上昇する。

エアコンの設定は以下の通りです。
【外気温が25℃以上で晴れて日射がある日】
・運転モード:冷房運転
・設定温度:22℃
・風量:弱運転
【外気温が25℃以下で日射がほとんどない日】
・運転モード:再熱除湿
・設定温度:24℃
ざっくり、こんな感じですが、温湿度計を見ながら割と適当に運用しています。
昼間の日射取得が多い場合は夜も冷房運転でサーモオフせずに稼働してくれています。
また、サーキュレーターを併用して冷気を部屋の外に押し出すようにしています。
エアコン室内機の中で部屋の空気を一旦冷やして除湿し、下がり過ぎた空気を温めて室内に戻す。冷房運転では室内が設定温度になると稼働停止(サーモオフ)が起こり送風モードになるため除湿がされなくなる。再熱除湿であれば確実に除湿を行うことができる。
ドアはすべて開放しており、北東にあるランドリールームの洗濯物も除湿器なしでも乾きます。今の梅雨時期は本当に助かります。
ウォークインクローゼットにある衣類も適正湿度を保つことでカビ・ダニの繁殖は皆無となり「タンスにゴンゴン」などの防カビ剤の使用など不要となります。
寝室も非常に快適空間となり、寝苦しい夜という日はなくなりました。寝室は特に我が家では家族4人で寝ているため、人から発生する湿気が集中しますので、できるだけ除湿したい空間となります。人の呼吸や体から発生される水分は1日当たり2リットルにもなると言われています。
1階エアコンは状況に応じて稼働
1階リビングにもエアコンを設置しています。補助的に稼働させています。
設置箇所は以下図面の赤枠箇所となります。

稼働状況はゴールデンタイム(19時~23時ぐらい)のみ再熱除湿にて稼働させています。理由としてはこの時間帯にお風呂・料理・食洗機の稼働を行うため、一日の生活の中で一番湿気が発生し、一時的に湿度がかなり上昇してしまうからです。
また、真夏日・猛暑日で日射が厳しいときは1階の室温が上がりすぎる(28℃ぐらいになってしまう)のでそのときは1階のエアコンを冷房運転で稼働させています。
1階もすべてのドアを開放しています。風呂場は換気扇は使用せずに窓を開放するだけで翌朝には完全に乾いています。サーキュレーターを使用して空気を掻き出してやると半分の時間で乾く印象ですので、おすすめです。
温室度管理
精度の高い温湿度計を使用して管理することが何よりも重要になります。
一般的な温室度計では温度は適正でも湿度は低めに出るものが多いです。
我が家では以下のみはりん坊という温室度計を使用しています。1階、2階、玄関(外)の三箇所に設置しています。
こちらの商品は精度が良く、相対湿度だけでなく、絶対湿度が計測できます。
空気中に含まれる水蒸気の量を表す単位。一般的に使用される湿度の単位は相対湿度で「%」で表示されるが、温度によっても数値が変化するため、絶対湿度で見たほうが正確に湿度を管理できる。
夏場は絶対湿度を12~13g/㎥にすることを目安にしています。相対湿度はあくまで目安として見ています。
我が家の全館冷房運用方法のデメリット
ここまで我が家の全館冷房の運用方法を書いてきましたが、以下のようにデメリットがかなりあります。
2階エアコンをつけた子供部屋が使用できなくなる
最初寝室にエアコンをつけようかと思っていたのですが、寝室の室温が下がりすぎるのを避けたかったので、現在はまだ使用していない子供部屋にエアコンをつけました。よってこの子供部屋が全館冷房時期においては使用不可となってしまいます。
娘の部屋(予定)なのですが、現在1歳なのでまだしばらくはこの方法で運用できますが、部屋を使用するようになったら運用方法を見直す必要があります。
ドアを開放させるので生活音が伝わりやすくなる
「全館」冷房とするためにドアをすべて開放します。ただでさえ高気密住宅で音が反響しやすい環境なのに、さらに伝わりやすくなり、プライバシーが保たれない恐れがあります。
我が家では特に気になりませんが、気になるご家庭は多いのではないかと推測します。
間取りに工夫が必要
我が家は1階は廊下のない間取りでリビング階段を採用しており、1,2階のアクセスも良くなっていますので、エアコンの冷気が行き渡りやすくなっています。
廊下が多く入り組んだ間取りになっている場合は、エアコン1,2台で全館冷房することは難しい場合があります。
特に2世帯住宅はプライバシーを尊重した間取りになっているケースが多く、エアコンでの全館冷房は難易度が高いと推測します。
高気密高断熱住宅が前提
我が家は一条工務店でトップクラスの性能を誇っていますが、性能の低い家では間取りを工夫してもエアコン1,2台で全館冷房させることは難しいと思いますし、できたとしても電気代がかなりかかってしまうものと思われます。
まとめ:設計段階で全館冷房を意識することが重要
今回は我が家のエアコンを使用した全館冷房の運用方法について紹介しました。
このような方法で5月末~9月末ぐらいまでエアコンを稼働し続けています。
エアコンでの全館冷房を成功させるには設計段階で全館冷房のしやすい間取り、エアコンの配置を決めることが重要となります。ただ、ご家族の意見も様々なのでなかなか簡単に全館冷房を前提とした間取りを決めるのは難航するケースが多いのではないかと推測します。
一条工務店の「さらぽか空調」や床下エアコンを使用した画期的な全館空調システムを採用する設計事務所・工務店も多く存在しますので、失敗したくない方はこのようなシステムを導入することをおすすめしたいと思います。
私も今建てるなら「さらぽか空調」は導入すると思います。電気代はかなりかかると聞きますが、誰でも確実に全館除湿をしてくれるシステムはやはり魅力的です。
本日は以上になります。



